Villa
30335 Fuente Álamo (Spanje)€ 236.000

50
Omschrijving
SLEUTELKLARE HALFVRIJSTAANDE VILLA IN FUENTE ALAMO, MURCIA
Residentie van herenhuizen, onafhankelijke en halfvrijstaande villa's in Fuente Álamo, Murcia.
U kunt kiezen uit zeven verschillende modellen huizen, ontworpen naar ieders smaak.
Rustieke ontwerpen gecombineerd met materialen van topkwaliteit en een focus op comfortabele leefruimte is er voor elk wat wils.
De bewoners van deze besloten gemeenschap van mooie, ruime woningen zullen ook kunnen genieten van hun eigen gemeenschappelijke tuinen en zwembaden.
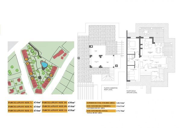
Deze ongebruikelijke design halfvrijstaande villa heeft 2 slaapkamers en 1 badkamer, onafhankelijke keuken, woonkamer met openslaande deuren naar de overdekte veranda en het half overdekte dakterras.
Een optie voor een privé zwembad tegen meerprijs.
Fuente Álamo de Murcia is een stad en gemeente in de regio Murcia, Zuid-Spanje. Het ligt 22 km ten noordwesten van Cartagena en 35 km ten zuidwesten van Murcia.
De stad ligt in het stroomgebied van de Mar Menor, omgeven door de bergen Algarrobo, Los Gómez, Los Victorias en de Carrascoy.
Het water van deze bergen stroomt naar beneden in de Rambla de Fuente Álamo en vervolgens naar de Mar Menor.
Fuente Álamo ligt op 30 minuten van de luchthaven van Murcia - Corvera.
Kenmerken
Instapklaar
Tuin
Afgesloten
Terras: 45 m²
Parkeerplaats
Aantal parkeerplaatsen: 1
Strand: 7500 meter
Locatie: Landelijk
Urbanisatie
Bruikbare bouwoppervlakte: 148 m²
Airconditioning: Voorgeïnstalleerd
Opslagruimte / Trastero
Tweepersoonsslaapkamers: 2

















